신규 자활사업 정담한상사업단 인테리어·전기 업체 수의계약 안내공고
페이지 정보
작성자 최고관리자 작성일26-02-24 15:19 조회373회첨부파일
-
정담한상 인테리어, 전기업체 공고문.pdf
(40.0K)
37회 다운로드
DATE : 2026-02-24 15:40:08
관련링크
본문
공 사 명 | 정담한상사업단 인테리어공사 | ||
정담한상사업단 전기공사 | |||
개찰일시 | 2026. 03. 03. | 견적제출기간 | 2026.02.24.~03.02. |
사업기간 | 착공일로부터 20일 | 개찰장소 | 두송지역자활센터 사무실 |
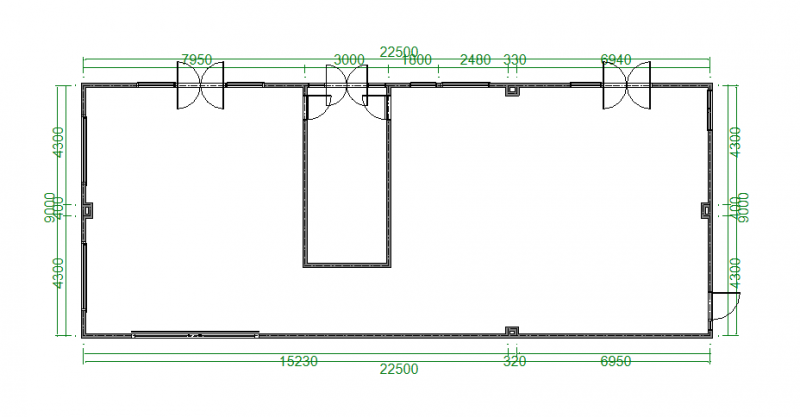
공사개요 | 1. 위치 : 부산광역시 사하구 장평로19, 제1층 2. 실면적 : 202.5㎡ | ||
계약업체 선정방법 | 「지방자치단체를 당사자로 하는 계약에 관한 법률」 및 「지방자치단체 입찰 및 계약 집행기준」에 근거하여 선정 | ||
제출서류 | 「지방자치단체 입찰 및 계약 집행기준」에 의한 수의계약 체결 시 구비서류 일체 | ||
계약문의 | 부산사하두송지역자활센터(T. 261-0750) | ||
